LINEアイコン

MENU

大阪市東淀川区で不動産の購入・売却を考えている方は合同会社 飛翔ハウジングにお任せください!!

一般公開物件

145件

お電話でのお問い合わせはこちら

06-6160-8780

受付時間: / 10:00~19:00
定休日 / 水曜日

東淀川区大道南1丁目 中古戸建

中古戸建
東淀川区大道南1丁目 中古戸建

価格
2,980万円
所在地 大阪府大阪市東淀川区大道南1丁目  東淀川区大道南1丁目 中古戸建 MAP
交通 大阪メトロ今里筋線 だいどう豊里駅 徒歩12分
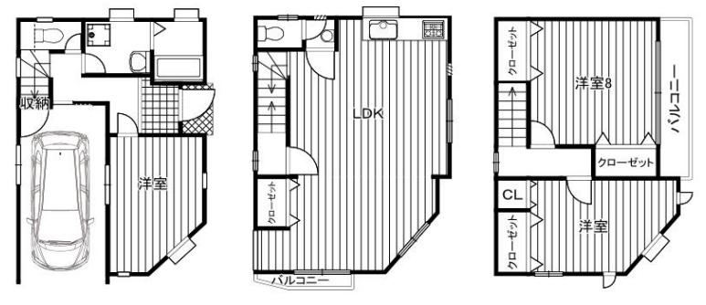
間取/専有面積
3LDK/ 113.23m²
築年月
1994/8
階建
3階/ 地上3階 
構造
木造
  • (外観)
  • (リビング)
  • (キッチン)
  • (洋室)
  • (風呂)
  • (洗面)
  • (玄関)
  • (収納)
  • (バルコニー)
  • (眺望)
  • (トイレ)
  • (外観)
  • (外観)
  • (駐車場)
  • (洋室)
  • (洋室)
  • (キッチン)
  • (キッチン)
  • (キッチン)
  • (リビング)
  • (トイレ)
  • (洗面)
  • (風呂)
  • (洋室)
  • (外観) (リビング) (キッチン) (洋室) (風呂) (洗面) (玄関) (収納) (バルコニー) (眺望) (トイレ) (外観) (外観) (駐車場) (洋室) (洋室) (キッチン) (キッチン) (キッチン) (リビング) (トイレ) (洗面) (風呂) (洋室)

    OUTLINE物件概要

    築年月 1994/8 新築/中古 中古
    面積 113.23m² 計測方式 内法
    向き 南西
    建物階数 地上3階 
    建物構造 木造
    間取内容 LDK2階   洋室1階   洋室3階   洋室3階   
    駐車場 取引態様 仲介
    引渡/入居時期 即時 現況 空家
    地目 宅地 用途地域 第一種住居
    都市計画 市街化区域 地勢 平坦
    土地面積 49.77m² 土地面積計測方式 公簿
    建ぺい率 80% 容積率 200%
    土地権利 所有権 接道状況 角地
    接道方向1 南東 接道間口1
    接道種別1 公道 接道幅員1
    接道方向2 南西 接道間口2
    接道種別2 公道 接道幅員2
    国土法届出
    設備・条件 角地 ガスコンロ 三口コンロ システムキッチン 食器洗い乾燥機 給湯 追い焚き 洗髪洗面化粧台 独立洗面台 シャワー 浴室乾燥機 バス・トイレ別 温水洗浄便座 室内洗濯機置き場 都市ガス 公営水道 排水下水
    物件番号 0156
    自社物 先物 状態
    ※物件掲載内容と現況に相違がある場合は現況を優先と致します。

    RELATE関連物件

    • 東淀川区南江口三丁目 新築戸建
      東淀川区南江口三丁目 新築戸建ご成約済 4LDK
      大阪市東淀川区 南江口三丁目9

      大阪メトロ今里筋線瑞光四丁目駅
    • 東淀川区下新庄4丁目 中古戸建
      東淀川区下新庄4丁目 中古戸建ご成約済 3LDK
      大阪市東淀川区 下新庄4丁目

      阪急千里線下新庄駅
    • 東淀川区東淡路4丁目 中古戸建
      東淀川区東淡路4丁目 中古戸建3,700万円 3LDK
      大阪市東淀川区 東淡路4丁目

      阪急京都本線淡路駅
    • 東淀川区南江口3丁目 中古戸建
      東淀川区南江口3丁目 中古戸建ご成約済 4LDK
      大阪市東淀川区 南江口3丁目

      大阪メトロ今里筋線瑞光四丁目駅

    OUTLINE物件概要

    築年月 1994/8
    新築/中古 中古
    面積 113.23m²
    計測方式 内法
    向き 南西
    建物階数 地上3階 
    建物構造 木造
    間取内容 LDK2階   洋室1階   洋室3階   洋室3階   
    駐車場
    取引態様 仲介
    引渡/入居時期 即時
    現況 空家
    地目 宅地
    用途地域 第一種住居
    都市計画 市街化区域
    地勢 平坦
    土地面積 49.77m²
    土地面積計測方式 公簿
    建ぺい率 80%
    容積率 200%
    土地権利 所有権
    接道状況 角地
    接道方向1 南東
    接道間口1
    接道種別1 公道
    接道幅員1
    接道方向2 南西
    接道間口2
    接道種別2 公道
    接道幅員2
    国土法届出
    設備・条件 角地 ガスコンロ 三口コンロ システムキッチン 食器洗い乾燥機 給湯 追い焚き 洗髪洗面化粧台 独立洗面台 シャワー 浴室乾燥機 バス・トイレ別 温水洗浄便座 室内洗濯機置き場 都市ガス 公営水道 排水下水
    物件番号 0156
    自社物 先物
    状態
    ※物件掲載内容と現況に相違がある場合は現況を優先と致します。
    • 東淀川区南江口三丁目 新築戸建
      東淀川区南江口三丁目 新築戸建ご成約済 4LDK
      大阪市東淀川区 南江口三丁目9

      大阪メトロ今里筋線瑞光四丁目駅
    • 東淀川区下新庄4丁目 中古戸建
      東淀川区下新庄4丁目 中古戸建ご成約済 3LDK
      大阪市東淀川区 下新庄4丁目

      阪急千里線下新庄駅
    • 東淀川区東淡路4丁目 中古戸建
      東淀川区東淡路4丁目 中古戸建3,700万円 3LDK
      大阪市東淀川区 東淡路4丁目

      阪急京都本線淡路駅
    • 東淀川区南江口3丁目 中古戸建
      東淀川区南江口3丁目 中古戸建ご成約済 4LDK
      大阪市東淀川区 南江口3丁目

      大阪メトロ今里筋線瑞光四丁目駅

      CONTACTこの物件にお問い合わせ

      必須物件名
      必須お名前
      必須メールアドレス
      必須お電話番号(携帯可)
      必須ご希望の連絡方法 メールまで電話まで特になし
      任意詳しいご要望などあれば

      Fudousan Plugin Ver.5.3.2